Bramhall
0161 439 5658
Wilmslow
01625 444 899
Home
Sales
Letting
Services
Services
Arrange a Valuation
Market Intelligence
Arrange a Valuation
Register with us
About
About Us
Meet the Team
Reviews
Careers
Local Area
Bramhall
Wilmslow
Contact Us
Register
with us
Arrange a Valuation
Menu
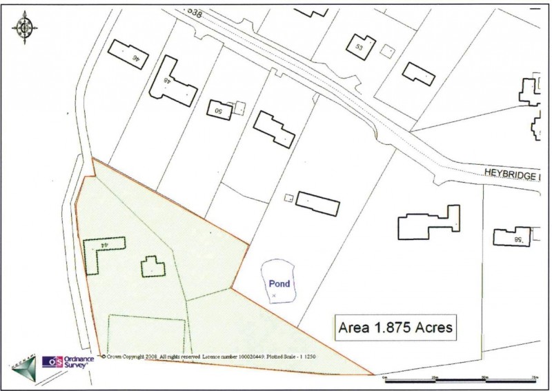
Photo Gallery for Heybridge Lane, Prestbury, Macclesfield
Home
Property Search
Heybridge Lane, Prestbury, Macclesfield
Photo Gallery
Property details
Previous
Next
Home
Sales
Letting
Services
Services
Arrange a Valuation
Market Intelligence
Arrange a Valuation
Register with us
About
About Us
Meet the Team
Reviews
Careers
Local Area
Bramhall
Wilmslow
Contact Us
↑