4 bed House For Sale

Orrell Crescent, Woodford, Cheshire

Guide Price £975,000

Orrell Crescent, Woodford, Cheshire has 4 bedrooms 4 Orrell Crescent, Woodford, Cheshire has 3 bathrooms 3

Overview

  • SIGNIFICANTLY UPGRADED DETACHED HOME
  • 4 BEDROOMS AND 3 BATHROOMS
  • HUGE EXTENDED KITCHEN/ DINING/ LIVING SPACE
  • CAT6 CABLING FOR HD STREAMING
  • INTEGRATED SONANCE CEILING SPEAKERS
  • CFP KITCHEN CABINETS WITH QUARTZ CALCATTA WORKTOPS
  • LANDSCAPED REAR GARDEN
  • CHAIN FREE SALE
Further Information

A significantly enhanced and EXTENDED Sunningdale Model Redrow family home giving an ultra high spec property providing luxury living at its best. Beautifully designed and meticulously maintained, it has the huge bonus of being CHAIN FREE.

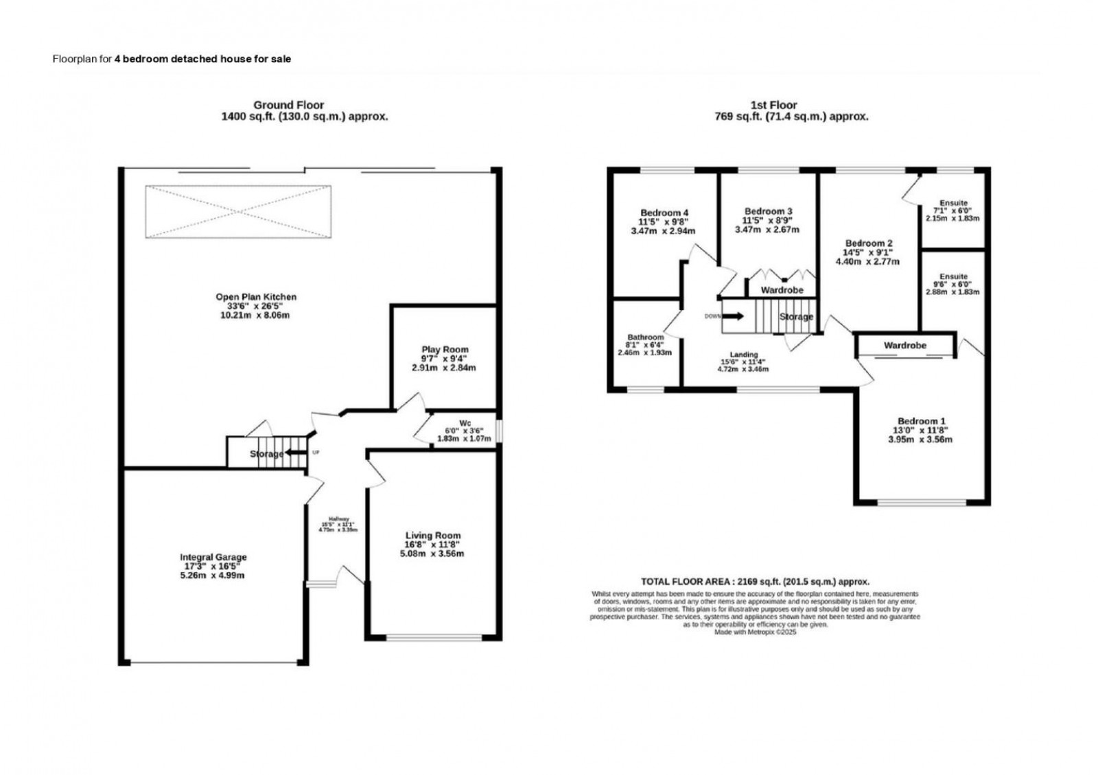
The property boasts four spacious double bedrooms and three well-appointed bathrooms, along with a convenient downstairs cloakroom. The versatile layout includes three generous reception rooms, providing ample space for both formal entertaining and relaxed family living. A highlight of the home is the extended open-plan kitchen, dining and living area – the true heart of the house – completed in 2024 with top of the range CFP cabinetry and Quartz Calacatta worktops. This impressive space features integrated Siemens appliances, including a full-size fridge/freezer, two double ovens with grills, a built-in microwave, a wine fridge, and a built-in coffee machine. A sleek Bora induction hob with integrated extractor, Quooker boiling and filtered water tap, and a full-size pull-out larder add both function and flair. The breakfast bar with feature pendant lighting (to remain) completes this stunning contemporary kitchen.

Inside, the home is finished to an exceptional standard, with LVT flooring to the hall, kitchen, and snug, and elegant soft-close cabinetry throughout. The home is future-ready with Cat6 cabling for HD streaming in the living room, kitchen, master bedroom, and snug, allowing access to Sky, Amazon, and PlayStation without the need for separate devices. A wall-mounted IT cabinet houses a Sonos amp, connecting to six Sonance ceiling speakers in the kitchen for immersive sound. In addition a stylish lantern roof floods the living space with natural light.

On the first floor the spacious landing leads to the 4 beautifully proportioned bedrooms, 2 of which enjoy en-suite facilities in addition to the stylish family bathroom.

Grounds and Gardens

Triple-track sliding doors open seamlessly onto the landscaped rear garden, where porcelain tiles flow from the interior to the exterior, enhancing the indoor-outdoor lifestyle. The garden itself is low-maintenance, with artificial grass, a raised decking area with ambient lighting surrounding it is ideal for barbecues and social gatherings giving and ample space to relax in the sun and into the evenings.

Location

Woodford Garden Village is a thoughtfully designed community in Woodford, Cheshire, blending modern living with rich history and abundant green spaces. Built on the former Woodford Aerodrome site. Residents benefit from amenities such as a primary school, local shops, the Aviator pub, and proximity to the Avro Heritage Museum. With excellent transport links to Manchester and the Peak District, Woodford Garden Village offers a harmonious blend of countryside charm and modern convenience.

Important Information

Heating - Gas central heating (radiators)
Mains - Gas, Electric, waters and drains
Property Construction- Brick built with tiled roof
Flood Risk - Very Low Risk (Surface water), Very Low Risk (sea and rivers)**
Water Meter - TBC
Freehold
Broadband providers - Openreach- FTTP (Fibre to the Premises). You may also be able to obtain broadband service from these Fixed Wireless Access providers covering your area for Virgin, Media and EE
Mobile providers- Mobile coverage at the property available
**Information provided by Ofcom checker and isn't guaranteed. Mosley Jarman take no responsibility for inaccuracies and advise potential buyers to do their own checks before committing to purchase.
**Information provided by GOV.UK

EPC Graph for Orrell Crescent, Woodford, Cheshire

Request a Viewing

  1. Preferred Day
  2. This Week
  3. Next Week
  4. In a Fortnight
  1. Preferred Time

This site is protected by reCAPTCHA and the Google Privacy Policy and Terms of Service apply.