4 bed Land Sold STC

Church Lane, Woodford

Guide Price £450,000

Church Lane, Woodford has 4 bedrooms 4 Church Lane, Woodford has 3 bathrooms 3

Overview

  • DEVELOPMENT PLOT
  • BESPOKE DESIGN BY AWARD WINNING ARCHITECT
  • UPPER GROUND AND LOWER GROUND PROPOSAL
  • STUNNING RURAL POSITION
  • PRIVATE DRIVEWAY WITH AMPLE OFF ROAD PARKING
Further Information

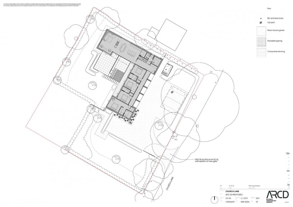
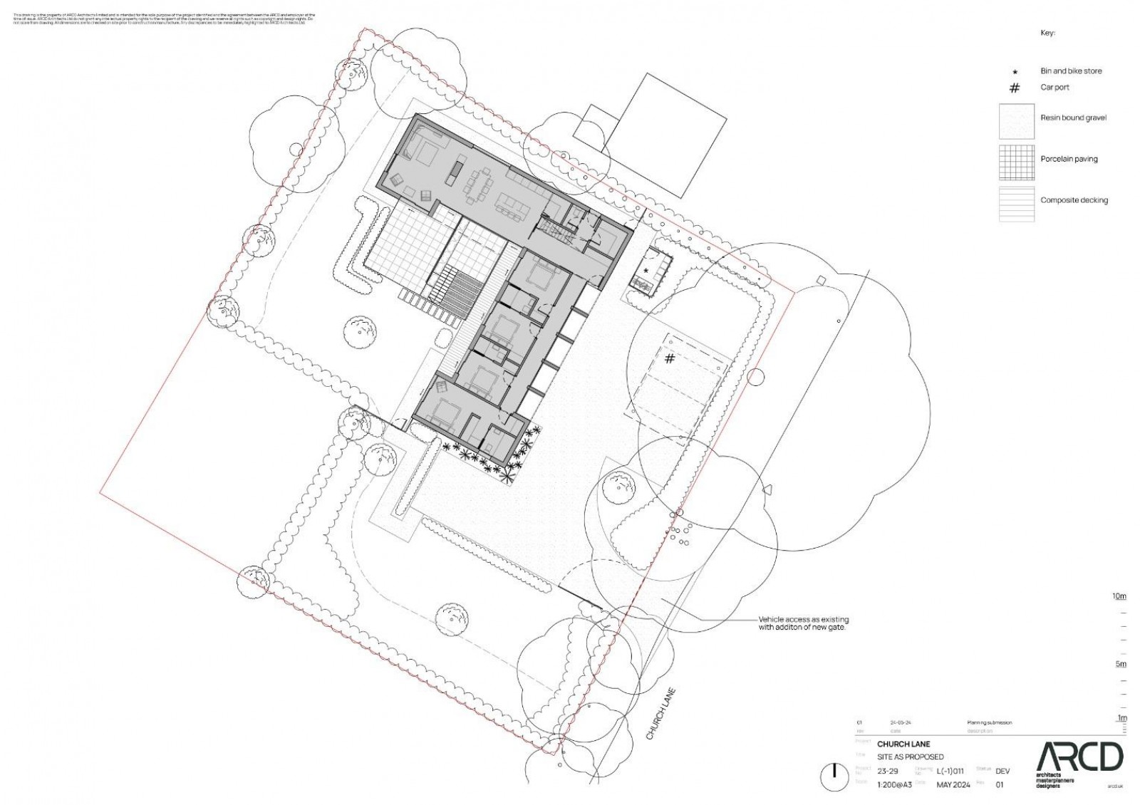
A very exciting DEVELOPMENT PLOT, just under 1/3rd of an Acre in a hugely desirable Woodford location on the favoured Church Lane. With planning permission approved (DC/092296) for an approximately 3810 sq ft ground breaking, contemporary home at both ground floor (approximately 1744sqft) and lower ground level (approximately 2067sqft), this unusual opportunity is bound to appeal to those looking for a self-build plot to create an amazing 'Grand Design' style home. Surrounded by fields and positioned off a charming country lane, the location is also within easy reach of Bramhall, Wilmslow and Cheadle Hulme, a fantastic array of amenities and superb transport links.

WHAT THREE WORDS: modern.remote.events

The intricacies of the final internal layout will no doubt be tweaked to the needs of the lucky purchaser, but is currently designed with 4 bedrooms, 3 bathrooms and a wonderful open plan living/ dining/ kitchen space on the upper level, whilst the lower floor remains a complete blank canvass with scope to create addition reception space. bedrooms, media rooms, gym space or even a swimming pool!

Externally the design includes a sweeping driveway with excellent off road parking provision to the front of the property, whilst to the rear, set within the L-shaped design is the private garden where you'll be able to create your dream outdoor space.

Location

Bramhall, which adjoins Woodford, is an attractive, leafy and affluent village with a population of around 25,500, situated 11 miles to the south of Manchester. A suburb that has emerged on a ‘rich list’ as 4th most expensive in house prices around Greater Manchester. Bramhall has a strong village community spirit (voted ‘least lonely’ and the ‘friendliest’ place to live in Britain), playing host to a Summer Festival, Light Up Bramhall winter festival and numerous community-centred events. Bramhall plays host to many restaurants, bars and coffee shops. Restaurants are joined by drink and dine venues to create a vibrant nightlife for a modest village. At the more relaxed end of the spectrum lie quality coffee shops.

Important Information

Heating - TBC
Mains - TBC
Property Construction- TBC
Flood Risk - Very Low Risk (Surface water), Very Low Risk (sea and rivers)
Water Meter - TBC
Freehold
Broadband providers - TBC
Mobile providers- Mobile coverage at the property available with all main providers. (Some limited indoor and outdoor coverage).
**Information provided by Ofcom checker and isn't guaranteed. Mosley Jarman take no responsibility for inaccuracies and advise potential buyers to do their own checks before committing to purchase.
**Information provided by GOV.UK

Request a Viewing

  1. Preferred Day
  2. This Week
  3. Next Week
  4. In a Fortnight
  1. Preferred Time

This site is protected by reCAPTCHA and the Google Privacy Policy and Terms of Service apply.